SS-V: 2060 In-plane Vibration of Pin-ended Cross
Test No. VM07 Find the first eight modal frequencies for in-plane vibration of a cross with pin joints at the ends.
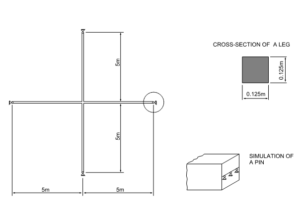
Definition

Pins are simulated via zero displacements applied to a straight line. The front surface of the cross is fixed from out-of-plane displacements.
The units are SI.
The material properties are:
- Properties
- Value
- Modulus of Elasticity
- 2e+11 N/m2
- Poisson's Ratio
- 0.3
- Mass density
- 8000 kg/m3
Results
The following table summarizes the
modes.
Reference Solution | SimSolid | % Difference | |
---|---|---|---|
Mode 1 [Hz] | 11.336 | 11.316 | -0.18% |
Mode 2 [Hz] | 17.709 | 17.813 | 0.59% |
Mode 3 [Hz] | 17.709 | 17.842 | 0.75% |
Mode 4 [Hz] | 17.709 | 17.843 | 0.76% |
Mode 5 [Hz] | 45.345 | 45.126 | -0.48% |
Mode 6 [Hz] | 57.390 | 57.364 | -0.05% |
Mode 7 [Hz] | 57.390 | 57.366 | -0.04% |
Mode 8 [Hz] | 57.390 | 57.546 | 0.27% |
1 NAFEMS, SBNFA (November 1987), Test
1.